Double Wide Floor Plans
Double Wide Mobile Homes
Double wide mobile homes offer the space that families need at a budget-friendly price. These mobile homes are roomy and inviting, and they also come with a number of customization options. This means your new home can reflect your personal style preferences. We offer beautiful family homes manufactured by Cavco Durango, Cavco West, and Clayton Homes with attractive amenities and plenty of value for your money. We’re proud to provide an unrivaled selection of first-class mobile homes, so you can choose a floor plan that is perfectly suited to your needs. Whatever size double wide mobile home you need, you’re sure to find it with us.
Why consider a double wide mobile home for your family?
Double wide homes are the most popular type of mobile home, and there are good reasons why so many people choose them. One of the top reasons for the popularity of double wide mobile homes is space. In order to be considered a double wide, the home has to be at least 20 feet in width and up to a maximum of 90 feet in length. This layout makes double wide mobile homes the perfect size for many families.
Double wide mobile homes are also popular because they can be configured in a number of different ways. Although these homes look like a single unit when they are on the site, they are actually constructed in two parts and then attached upon delivery. This effect is seamless for the homeowners, but it also means that the attachment can be designed in multiple ways, so that the home can have additional architectural features.
What floor plans and sizes are available?
The ability to configure double wide mobile homes in multiple ways means that there is a long list of available floor plans. This allows you to choose the features that are most important to you. For example, maybe you want four bedrooms, but are willing to cut down on space in your living room or don’t care about having a walk-in closet. Or perhaps you only need two bedrooms, but you want to have extra space for cooking or as much closet space as possible. The variety of available floor plans makes finding the right layout to fit your needs simple and easy.
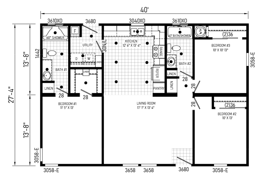
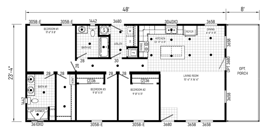
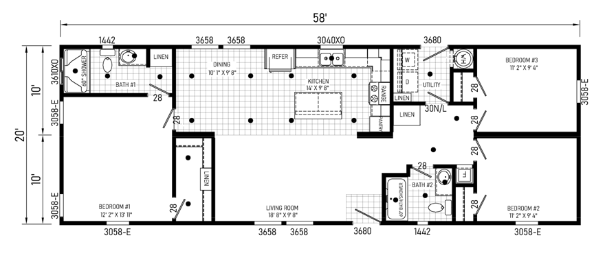
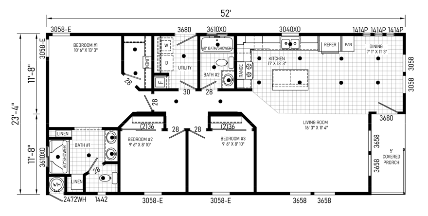
You can find double wide floor plans from 800 square feet all the way up to 2,187 square feet. As you might expect with any kind of home, of course, the price goes up with the square footage.
The Home Outlet is pleased to bring move-in ready double wide mobile homes to Arizona, California, Utah, Nevada, New Mexico & Colorado. We offer customizable designs from Cavco Durango, Cavco West, and Clayton Homes. Our team has worked with numerous homebuyers over the years, and we can help you find a double wide mobile home that will be perfect for you. Contact us today to discuss our floor plans, or visit our Chandler mobile home outlet to explore some of our models.
|
24x44 Ft Double Wide |
24x48 Ft Double Wide |
|
24x56 Ft Double Wide |
28x56 Ft Double Wide |
|
30x62 Ft Double Wide |
|
20x30 Ft Double Wide |
24x37 Ft Double Wide 775 SqFt · 2 Beds · 2 Baths Home Built By: Cavco Goodyear |
|
20x40 Ft Double Wide |
20x40 Ft Double Wide |
|
20x40 Ft Double Wide |
28x40 Ft Double Wide |
|
24x37 Ft Double Wide |
20x44 Ft Double Wide |
|
24x37 Ft Double Wide |
20x44 Ft Double Wide |
|
20x44 Ft Double Wide |
20x44 Ft Double Wide 880 SqFt · 2 Beds · 2 Baths Home Built By: Cavco Goodyear |
|
24x40 Ft Double Wide |
24x40 Ft Double Wide |
|
24x40 Ft Double Wide |
24x40 Ft Double Wide |
|
24x40 Ft Double Wide |
24x40 Ft Double Wide |
|
24x40 Ft Double Wide |
20x48 Ft Double Wide 960 SqFt · 3 Beds · 2 Baths Home Built By: Cavco Goodyear |
|
20x48 Ft Double Wide |
20x48 Ft Double Wide |
|
20x48 Ft Double Wide |
28x36 Ft Double Wide |
|
20x48 Ft Double Wide 960 SqFt · 2 Beds · 2 Baths Home Built By: Cavco Goodyear |
24x44 Ft Double Wide |
|
28x40 Ft Double Wide |
24x42 Ft Double Wide |
|
20x48 Ft Double Wide |
20x52 Ft Double Wide |
|
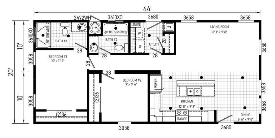
24x44 Ft Double Wide 1,025 SqFt · 2 Beds · 2 Baths Home Built By: Cavco Goodyear |
24x44 Ft Double Wide 1,025 SqFt · 2 Beds · 2 Baths Home Built By: Cavco Goodyear |
|
24x44 Ft Double Wide |
24x44 Ft Double Wide |
|
24x44 Ft Double Wide |
24x44 Ft Double Wide |
|
20x52 Ft Double Wide |
20x52 Ft Double Wide |
|
20x52 Ft Double Wide |
20x52 Ft Double Wide |
|
20x52 Ft Double Wide |
24x44 Ft Double Wide |
|
24x44 Ft Double Wide |
24x44 Ft Double Wide |
|
28x40 Ft Double Wide |
28x40 Ft Double Wide |
|
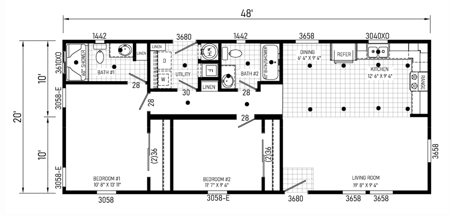
28x40 Ft Double Wide 1,090 SqFt · 3 Beds · 2 Baths Home Built By: Cavco Goodyear |
28x44 Ft Double Wide |
|
20x56 Ft Double Wide |
24x48 Ft Double Wide |
|
24x48 Ft Double Wide 1,120 SqFt · 3 Beds · 2 Baths Home Built By: Cavco Goodyear |
24x48 Ft Double Wide 1,120 SqFt · 3 Beds · 2 Baths Home Built By: Cavco Goodyear |
|
20x56 Ft Double Wide 1,120 SqFt · 3 Beds · 2 Baths Home Built By: Cavco Goodyear |
24x48 Ft Double Wide |
|
24x48 Ft Double Wide |
20x56 Ft Double Wide |
|
24x48 Ft Double Wide |
20x56 Ft Double Wide |
|
20x56 Ft Double Wide |
24x48 Ft Double Wide 1,120 SqFt · 2 Beds · 2.5 Baths Home Built By: Cavco Goodyear |
|
24x48 Ft Double Wide |
24x48 Ft Double Wide |
|
24x50 Ft Double Wide |
28x44 Ft Double Wide |
|
20x58 Ft Double Wide |
20x58 Ft Double Wide |
|
20x58 Ft Double Wide 1,160 SqFt · 3 Beds · 2 Baths Home Built By: Cavco Goodyear |
24x56 Ft Double Wide |
|
24x50 Ft Double Wide |
28x44 Ft Double Wide |
|
28x44 Ft Double Wide |
28x44 Ft Double Wide |
|
28x44 Ft Double Wide |
28x44 Ft Double Wide |
|
28x44 Ft Double Wide |
24x52 Ft Double Wide |
|
46x26 Ft Double Wide |
20x60 Ft Double Wide |
|
24x52 Ft Double Wide 1,200 SqFt · 3 Beds · 2 Baths Home Built By: Cavco Goodyear |
20x60 Ft Double Wide |
|
24x52 Ft Double Wide 1,200 SqFt · 3 Beds · 2 Baths Home Built By: Cavco Goodyear |
28x44 Ft Double Wide 1,200 SqFt · 2 Beds · 2 Baths Home Built By: Cavco Goodyear |
|
28x44 Ft Double Wide 1,200 SqFt · 3 Beds · 2 Baths Home Built By: Cavco Goodyear |
28x44 Ft Double Wide 1,203 SqFt · 3 Beds · 2 Baths Home Built By: Cavco Goodyear |
|
24x52 Ft Double Wide |
24x52 Ft Double Wide |
|
24x52 Ft Double Wide |
24x52 Ft Double Wide |
|
24x52 Ft Double Wide |
24x52 Ft Double Wide |
|
24x52 Ft Double Wide |
24x52 Ft Double Wide |
|
24x52 Ft Double Wide |
24x52 Ft Double Wide |
|
24x52 Ft Double Wide |
24x52 Ft Double Wide |
|
24x56 Ft Double Wide |
28x48 Ft Double Wide |
|
28x48 Ft Double Wide |
28x48 Ft Double Wide 1,280 SqFt · 2 Beds · 2 Baths Home Built By: Cavco Goodyear |
|
28x48 Ft Double Wide |
28x48 Ft Double Wide |
|
28x48 Ft Double Wide |
28x48 Ft Double Wide |
|
28x48 Ft Double Wide 1,300 SqFt · 3 Beds · 2 Baths Home Built By: Cavco Goodyear |
28x48 Ft Double Wide 1,300 SqFt · 3 Beds · 2 Baths Home Built By: Cavco Goodyear |
|
24x56 Ft Double Wide |
24x56 Ft Double Wide |
|
24x56 Ft Double Wide |
24x56 Ft Double Wide |
|
24x56 Ft Double Wide |
24x56 Ft Double Wide |
|
24x56 Ft Double Wide |
24x56 Ft Double Wide |
|
24x56 Ft Double Wide |
24x56 Ft Double Wide |
|
24x60 Ft Double Wide |
24x58 Ft Double Wide 1,353 SqFt · 3 Beds · 2 Baths Home Built By: Cavco Goodyear |
|
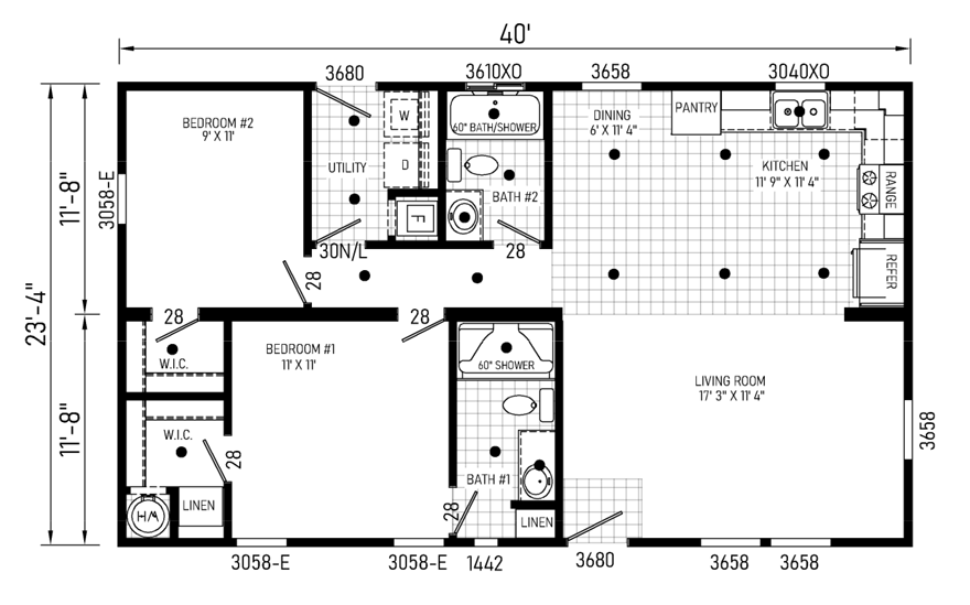
28x52 Ft Double Wide 1,369 SqFt · 3 Beds · 2 Baths Home Built By: Clayton West |
28x52 Ft Double Wide |
|
24x58 Ft Double Wide |
28x52 Ft Double Wide |
|
28x52 Ft Double Wide |
28x52 Ft Double Wide |
|
28x52 Ft Double Wide |
28x52 Ft Double Wide |
|
28x52 Ft Double Wide |
28x52 Ft Double Wide |
|
28x52 Ft Double Wide |
24x60 Ft Double Wide |
|
24x60 Ft Double Wide |
24x60 Ft Double Wide |
|
24x60 Ft Double Wide |
28x56 Ft Double Wide |
|
28x54 Ft Double Wide |
28x52 Ft Double Wide 1,420 SqFt · 3 Beds · 2 Baths Home Built By: Cavco Goodyear |
|
28x52 Ft Double Wide 1,420 SqFt · 3 Beds · 2 Baths Home Built By: Cavco Goodyear |
28x52 Ft Double Wide 1,420 SqFt · 4 Beds · 2 Baths Home Built By: Cavco Goodyear |
|
24x60 Ft Double Wide |
28x60 Ft Double Wide 1,422 SqFt · 3 Beds · 2 Baths Home Built By: Clayton West |
|
28x55 Ft Double Wide 1,448 SqFt · 2 Beds · 2 Baths Home Built By: Clayton West |
24x56 Ft Double Wide 1,470 SqFt · 3 Beds · 2 Baths Home Built By: Cavco Goodyear |
|
28x56 Ft Double Wide |
28x56 Ft Double Wide 1,474 SqFt · 3 Beds · 2 Baths Home Built By: Clayton West |
|
28x56 Ft Double Wide |
28x56 Ft Double Wide |
|
28x56 Ft Double Wide 1,475 SqFt · 3 Beds · 2 Baths Home Built By: Clayton |
28x56 Ft Double Wide 1,475 SqFt · 3 Beds · 2 Baths Home Built By: Clayton West |
|
28x56 Ft Double Wide |
28x56 Ft Double Wide |
|
28x56 Ft Double Wide |
28x56 Ft Double Wide |
|
28x56 Ft Double Wide |
28x56 Ft Double Wide |
|
28x56 Ft Double Wide |
28x56 Ft Double Wide |
|
28x56 Ft Double Wide |
28x56 Ft Double Wide |
|
28x56 Ft Double Wide |
28x56 Ft Double Wide |
|
28x56 Ft Double Wide |
28x56 Ft Double Wide |
|
28x56 Ft Double Wide |
28x57 Ft Double Wide |
|
28x57 Ft Double Wide |
28x60 Ft Double Wide |
|
28x59 Ft Double Wide |
28x56 Ft Double Wide 1,530 SqFt · 3 Beds · 2 Baths Home Built By: Cavco Goodyear |
|
28x56 Ft Double Wide |
28x56 Ft Double Wide 1,530 SqFt · 3 Beds · 2 Baths Home Built By: Cavco Goodyear |
|
28x56 Ft Double Wide |
28x58 Ft Double Wide |
|
28x58 Ft Double Wide |
28x58 Ft Double Wide |
|
28x58 Ft Double Wide |
28x58 Ft Double Wide |
|
28x61 Ft Double Wide |
28x61 Ft Double Wide |
|
28x61 Ft Double Wide |
28x60 Ft Double Wide |
|
28x60 Ft Double Wide |
28x60 Ft Double Wide 1,580 SqFt · 4 Beds · 2 Baths Home Built By: Clayton West |
|
28x60 Ft Double Wide |
28x60 Ft Double Wide |
|
28x60 Ft Double Wide |
28x60 Ft Double Wide |
|
28x60 Ft Double Wide |
28x60 Ft Double Wide |
|
28x60 Ft Double Wide |
28x60 Ft Double Wide |
|
28x60 Ft Double Wide |
28x60 Ft Double Wide |
|
28x60 Ft Double Wide 1,635 SqFt · 3 Beds · 2 Baths Home Built By: Cavco Goodyear |
28x60 Ft Double Wide |
|
30x64 Ft Double Wide |
32x56 Ft Double Wide 1,680 SqFt · 3 Beds · 2 Baths Home Built By: Clayton West |
|
32x56 Ft Double Wide |
30x56 Ft Double Wide |
|
30x56 Ft Double Wide |
30x56 Ft Double Wide |
|
32x56 Ft Double Wide |
28x64 Ft Double Wide |
|
28x64 Ft Double Wide |
28x64 Ft Double Wide |
|
28x64 Ft Double Wide |
28x66 Ft Double Wide |
|
28x66 Ft Double Wide 1,738 SqFt · 4 Beds · 2 Baths Home Built By: Clayton West |
28x66 Ft Double Wide |
|
30x60 Ft Double Wide |
28x68 Ft Double Wide |
|
32x60 Ft Double Wide 1,800 SqFt · 3 Beds · 2 Baths Home Built By: Clayton West |
28x66 Ft Double Wide 1,804 SqFt · 4 Beds · 2 Baths Home Built By: Cavco Goodyear |
|
28x68 Ft Double Wide |
30x62 Ft Double Wide |
|
28x70 Ft Double Wide |
32x60 Ft Double Wide |
|
30x64 Ft Double Wide |
30x64 Ft Double Wide |
|
28x72 Ft Double Wide |
28x72 Ft Double Wide |
|
28x72 Ft Double Wide |
32x62 Ft Double Wide |
|
32x66 Ft Double Wide 1,980 SqFt · 4 Beds · 2 Baths Home Built By: Clayton West |
30x66 Ft Double Wide |
|
28x76 Ft Double Wide 2,001 SqFt · 4 Beds · 3 Baths Home Built By: Clayton West |
28x76 Ft Double Wide |
|
28x76 Ft Double Wide |
28x76 Ft Double Wide |
|
28x76 Ft Double Wide |
31x66 Ft Double Wide |
|
31x66 Ft Double Wide |
30x70 Ft Double Wide |
|
28x76 Ft Double Wide 2,077 SqFt · 3 Beds · 2 Baths Home Built By: Cavco Goodyear |
28x76 Ft Double Wide |
|
32x68 Ft Double Wide |
32x72 Ft Double Wide 2,160 SqFt · 4 Beds · 3 Baths Home Built By: Clayton West |
|
32x70 Ft Double Wide |
32x70 Ft Double Wide |
|
32x70 Ft Double Wide |
32x76 Ft Double Wide |



















































































































































































































































